11 Petherick Crescent, Johnsonville
Price By Negotiation
3
1
1 
Prime Position on Petherick? YIP!
If you've been waiting for a place where the location does the heavy lifting, this sunny stand alone home is one you'll want to see. Set within easy walking distance of Johnsonville township, it puts cafes, shops, supermarkets and public transport right on your doorstep, turning busy days into easy ones.
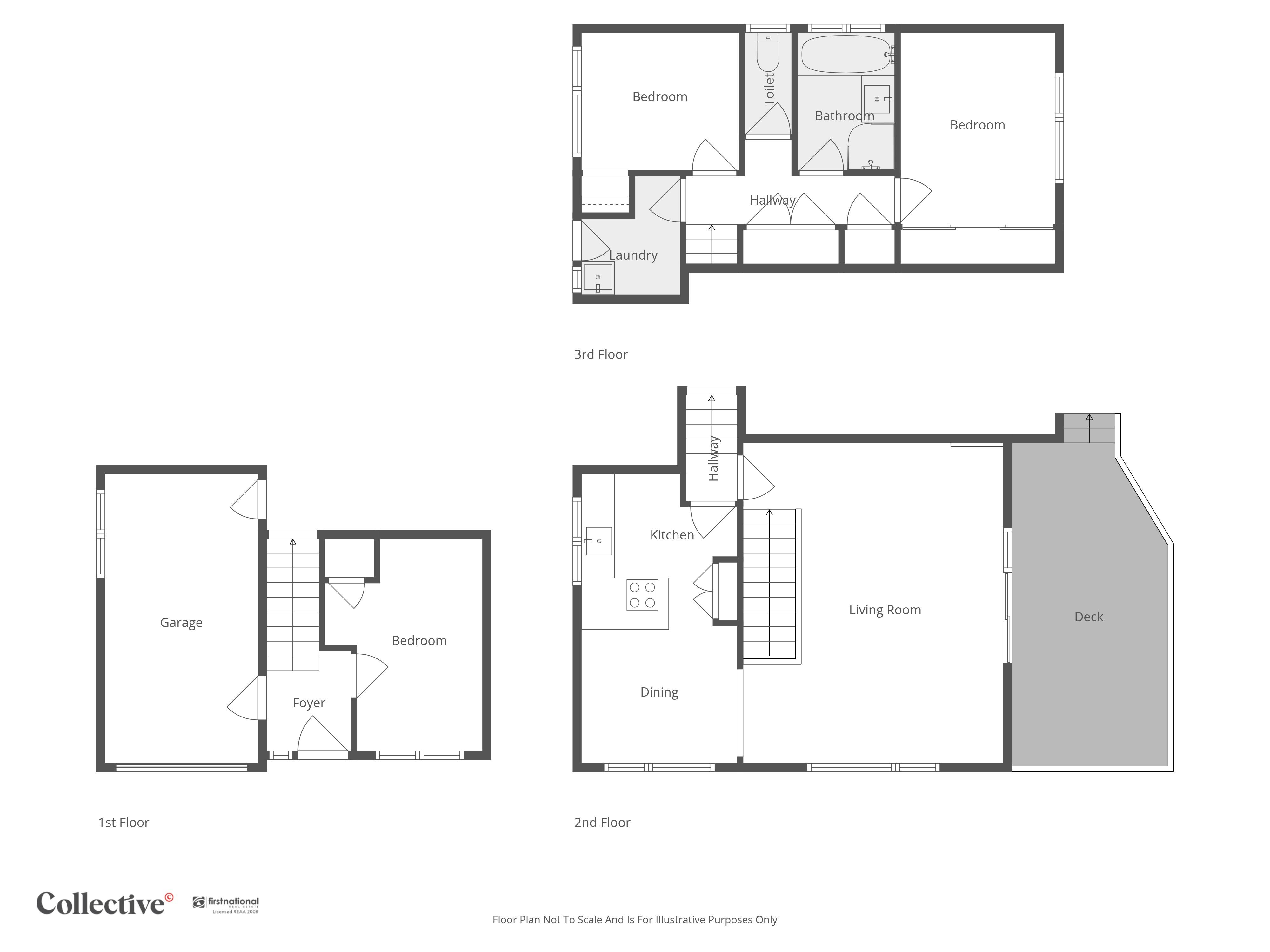
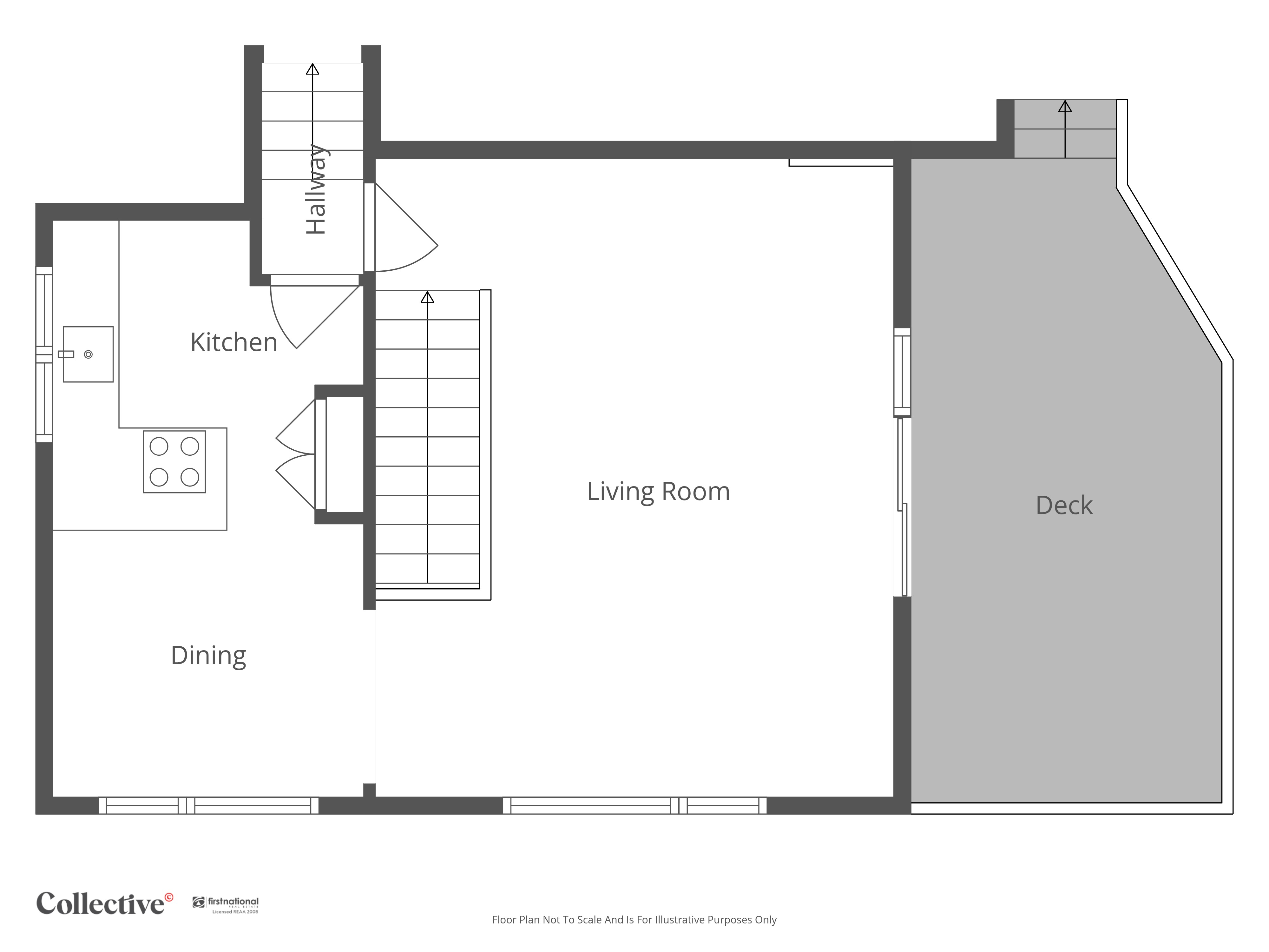
Inside the home is warm, welcoming and well laid out. Your main living spaces have been modernised so just bring in the furniture and call this home for the new year. Enjoy the sheltered decking off the lounge space, perfect for summer barbecues and entertaining! Three well proportioned bedrooms offer flexibility with the layout doing you a favour; two bedrooms on the top floor and one down, creates separation for teenagers, flatties or just a smart investment.
Classic weatherboard construction gives the home timeless appeal, and being fully stand alone means you can enjoy your own space without shared walls. The garage adds valuable storage or secure parking, and the sunny aspect ensures the home feels bright and comfortable throughout the day.
Perfect for first home buyers wanting to get into a sought after suburb, downsizers looking for convenience, or investors who know the value of a prime location; this is an opportunity that simply makes sense. Homes this close to Johnsonville don't stay on the market for long.
Contact Richard Ho and William YIP & Linda Huynh, Team YIP at 0225 647 439 for your private viewing today!
Builders and LIM report will be available.
Team YIP are working right through the holiday period, including Christmas & New Years Day.
Does the market go on holiday or does your agent? Thinking of Selling? Let us help you take all the stress away!
Property marketed by Team YIP - #1 Local Real Estate Team
http://www.TeamYIP.co.nz
Our team speaks 20+ different languages, including Mandarin, Cantonese, Hindi, Sinhalese, Korean and more.
Inside the home is warm, welcoming and well laid out. Your main living spaces have been modernised so just bring in the furniture and call this home for the new year. Enjoy the sheltered decking off the lounge space, perfect for summer barbecues and entertaining! Three well proportioned bedrooms offer flexibility with the layout doing you a favour; two bedrooms on the top floor and one down, creates separation for teenagers, flatties or just a smart investment.
Classic weatherboard construction gives the home timeless appeal, and being fully stand alone means you can enjoy your own space without shared walls. The garage adds valuable storage or secure parking, and the sunny aspect ensures the home feels bright and comfortable throughout the day.
Perfect for first home buyers wanting to get into a sought after suburb, downsizers looking for convenience, or investors who know the value of a prime location; this is an opportunity that simply makes sense. Homes this close to Johnsonville don't stay on the market for long.
Contact Richard Ho and William YIP & Linda Huynh, Team YIP at 0225 647 439 for your private viewing today!
Builders and LIM report will be available.
Team YIP are working right through the holiday period, including Christmas & New Years Day.
Does the market go on holiday or does your agent? Thinking of Selling? Let us help you take all the stress away!
Property marketed by Team YIP - #1 Local Real Estate Team
http://www.TeamYIP.co.nz
Our team speaks 20+ different languages, including Mandarin, Cantonese, Hindi, Sinhalese, Korean and more.
Open times
Request a viewingProperty features
| Property ID: | 28881572 |
| Bedrooms: | 3 |
| Bathrooms: | 1 |
| Garages: | 1 |
| Building: | 130m2 |
Property location



























